中国科学院上海药物研究所-华佗路275弄9号楼房间改造项目公告

项目名称:中国科学院上海药物研究所-华佗路275弄9号楼房间改造项目
项目文件编号:2023041201
建设单位:中国科学院上海药物研究所
预算限价:37万元(人民币)
  中国科学院上海药物研究所华佗路275弄9号楼房间改造项目。
现采用竞争性磋商的方式,邀请合格供应商就该项目提交竞价材料
(含商务及技术标书、营业执照复印件、资质材料复印件等)。
一、主要工程内容见附件-预估工程量与预估工料机汇总表;
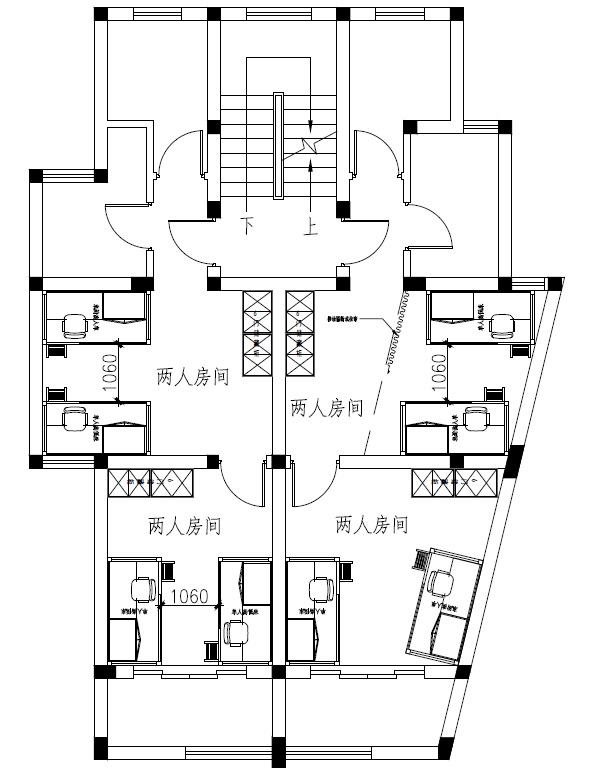
二、 施工区域布局图见附件-房间布局图; 
三、资格条件
1、报价单位应在中国大陆有合法的经营资格及建筑装修装饰工程施工专业三级资质;
2、具有类似项目施工案例;
3、在中华人民共和国境内依法注册的,具有独立承担民事责任能力,遵守国家法律法规,具有良好信誉,具有履行合同能力和良好的履行合同的记录,具有良好资金、财务状况的法人实体;
4、本项目不接受联合体投标;
5、投标人不得为列入失信被执行人、重大税收违法案件当事人名单。
  对上述项目有意向的单位可于 2023年4月12日起至4月18日止,每天(节假日除外)上午 9:00~11:00,下午 13:30~16:00。持上述证照的原件,到上海药物研究所综合保障部递交竞价材料及上述证照加盖公章的复印件。报价截止时间:2023年4月18日下午16时整(北京时间),报价单位在报价截止时间前30分钟递交材料,逾期收到或不符合规定的报价文件恕不接受。
材料递交地点:上海市浦东新区祖冲之路555号1号楼310室
联系人:焦健  联系电话:50802318  邮政编码:201203
传真:(021)50802318
竞争性磋商时间与地点:2023年4月20日9时整(北京时间)上海市浦东新区祖冲之路555号1号楼303会议室
欢迎有能力的单位前来报价。
附件:
中国科学院上海药物研究所
2023年4月12日